toppic
当前位置: 首页> 玄幻小说> 川行设计新作 _以爱为名 以家为实

川行设计新作 _以爱为名 以家为实

2020-05-14 14:26:45


以爱为名  以家为实



以下文字出自客户装修日记

   装修真的是个极其考验耐心的事儿,从15年底陆陆续续到17年初才搬进去。中间的过程累并快乐着。总觉得家是港湾,是依靠。不想随随便便就开始装修设计。作为地地道道的富阳人,在富阳兜兜转转了一大圈最终还是在杭州找到了心仪的设计师。在这里要特别感谢下范设计,由于工作原因,我们基本就负责say yes or no.都是设计师负责挑选,所以说设计师真的特别重要。
记得刚开始转了很多设计公司,大的小的都转了。一头的雾水,每个设计师基本都觉得还可以,却也让人没有当即拍板的冲动。范设计是个特例。我们抱着看一看的态度和范设计聊了下。没想到他对空间的初步设想太让我们惊艳了,居然还能这样调整,看了太多千篇一律的设计,我们当机立断,就是他了!事实证明我们的眼光还是不错的!后来同小区的朋友看过我们家,都觉得空间格局修改的合理多了。默默成了小区样板房,哈哈,此处应有掌声!
    装修日记地址:http://home.19lou.com/forum-106-thread-74851487827289395-1-1.html



【案例档案】

【户   型】:3室2厅1厨3卫

【建筑面积】:180平方

【装修风格】:休闲美式

【主案设计】:范

【软装设计】:范

【摄    影】:晓楼


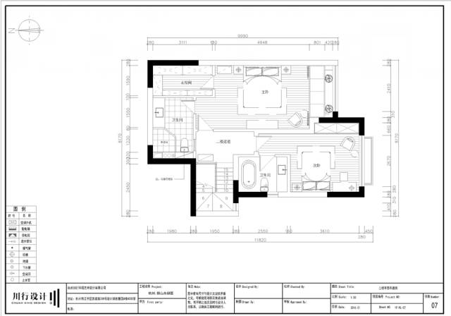
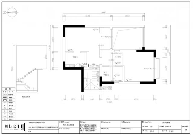
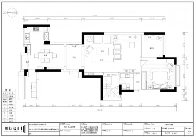
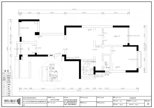
【户型图】


  一楼原始图/一楼平面布置图



二楼原始图/二楼平面布置图



设计说明:

    精简的硬装与恰当的软装,把客厅塑造成一个和谐轻松的居家环境,中咖色调温和宜人,线条清爽雅致;淡中咖色墙面、天花板、沙发与深色系的茶几、沙发后造型墙面相得益彰,赋予空间平衡之美。几株绿植点缀其中,心情也变得晴朗。

















        更多精彩内容关注川行设计微信公众号


 


 客服QQ:361162363 

  电话:0571-56137566

公司地址:杭州市江干区凯旋路208号设计师创意园4楼4030室


微信号:CXSJCXSJ

               长按二维码关注我们!




友情链接