toppic
当前位置: 首页> 玄幻小说> 海青老师荐书《BIM制图-酒店样板房》​

海青老师荐书《BIM制图-酒店样板房》​

2022-01-11 16:10:53

《BIM制图-酒店样板房》


今天向大家推荐一本书,我自己写的一本书《BIM制图-酒店样板房》,这是一本全面介绍酒店标间制图标准的书籍,书里全面介绍标间这个空间需要表达的元素、表达形式和深度。对于新人小白来说,很有必要仔细看一遍。对于新人这本书能给你带来什么!


1、了解施工图讲述一个空间的设计要求的表达逻辑。


2、行业公认的施工图的标准是什么样的,说白了就是如果你画的施工图能达到我们这本书的水平,那就可以拿高薪了,行业平均水平之上。


3、平面类图怎样画才算是好的。我们在成过过程当中,遇到过太多的施工图和太多人的观点。,有人说这个好,有人说那个好,见的多了,自己都没方向了。一会觉得都很好,一会觉得都不怎么地。这是逻辑混乱了的前期症状。看了这本书,就可以鉴定了,原来这样画才是最好。


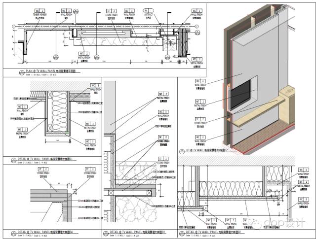
4、书中的节点图表达、立面图表达的时候,用了很多新的方式,也许你从来没见过,彩色立面表达、透视表达、用一个新词“透剖”。就是又有透视又有剖面,你说先进不先进。在我看来施工图这样表达,更直观、传达的信息更多。


5、那就不多说了,快点下单,买回家看过书后在和海青哥讨论,哈哈





BIM制图要建好模型













一、全彩三维剖面图




这是三维彩色剖面图




二维剖面图,与彩剖对应便于理解



这是衣柜的图纸表达方式,彩色透视+剖面



这是衣柜剖面图



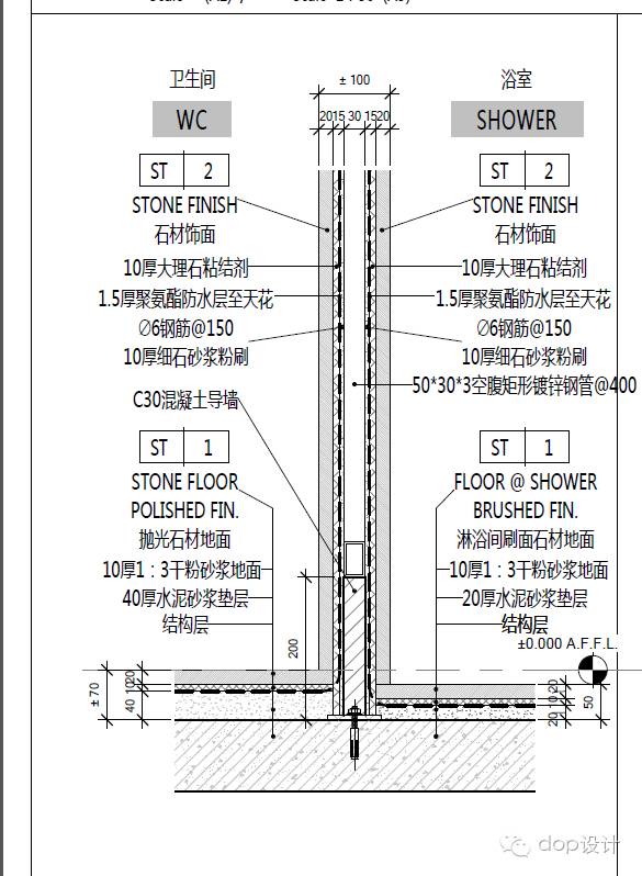
彩色透视剖面加上各种剖面、节点、大样来说清设计要求,结构关系。


二、全彩色立面图


这是彩色立面图,相同材料用同一色块来表达,与传统的图纸表达方式不太一样。



卫生间的彩色立面表达


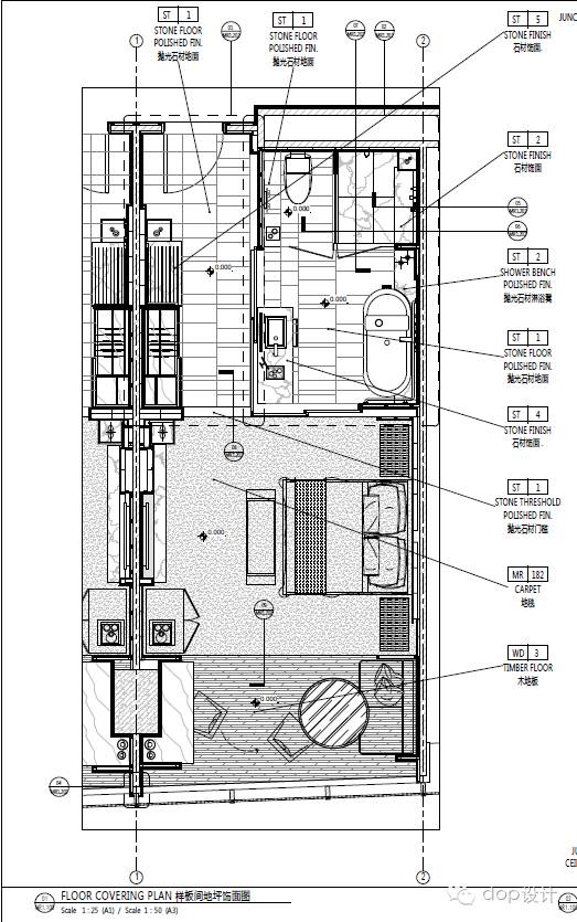
三、一套完整酒店标间施工图




整本书为一套酒店标间的全套图纸


这是设备末端定位




四、实物体照片










产品名称:《BIM制图-酒店样板房》

主编:贺梦   周遐德   赵鲲   朱小斌   王海青  王建军

软件:REVIT

页数: 42页

售价:69元(人民币)

装订:有线胶装 

风格:豪华精装本,

定价:全国统一售价69元(人民币) 包邮(预售59元)

开本:大8开(420mm*297mm) 

 重量:1000+g  

纸张:200克艺术纸

出版时间:2016年10月

出品:dop设计








五、购买方式



在这里下单购买


订单 详情



售价:69元 包邮


下单方式


长按二维码 点击识别 立即下单!








点击下方“阅读原文”在线下单



友情链接